Unique Consultancy
 

Project at Dumdum

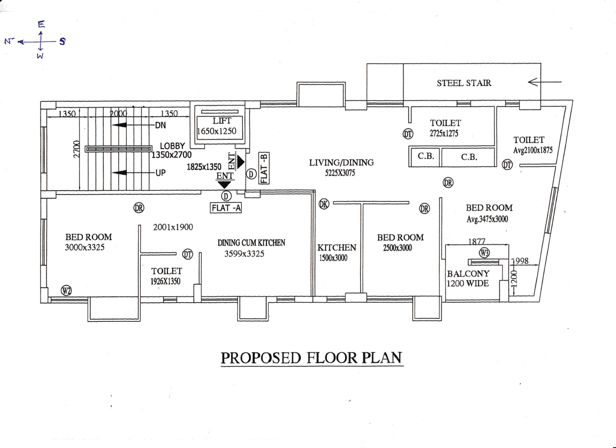
DUMDUM

 

Location

 

 

Completion Time : - January’2016 .
SPECIFICATION : -
  1. FOUNDATION : - Pile Foundation
  2. STRUCTURE :- RCC framed
  3. Brick Walls :- 8” , 5” and 3”
  4. Rooms flooring :- Vitrified tiles
  5. Living & Dining : - Vitrified tiles
  6. Kitchen :- Ceramic tiles
  7. Counter : - Black Granite
  8. Sink : - Stainless Steel
  9. Dado:- Ceramic tiles ( 2 feet above counter )

    Toilets :-  Ceramic tiles ( up to 7 feet )

    Wash Basin :-  Ceramic white

    Fitting :-  CP fittings of reputed brand

    Door frame :-   Timber

    Shutter :- Flush doors ( collapsible gate at extra cost )

    Windows : - Aluminum windows with clear glass panels ( Grill at extra cost )

    Internal Finish:-Plaster of paris

    External Finish:- Good quality Weatherproof paint

    Electrical:- Concealed copper wiring and modular switches for AC , TV & Telephone points in one bedroom , living & dining room and Geyer point in toilets

Dumdum Site Plan

Click Image For Enlarge View

 

The above amenities and specifications are tentative and may be changed or modified at the sole discretion of the developer . The plans shown are only indicative and subject to variation and modification by the developer .